Brummelhuis, MEPPEL

Verkocht

Kenmerken van de woning

  • Stad

    MEPPEL

  • Postcode

    7942 NA

  • Prijs

    Verkocht

  • Woonoppervlakte

    146 m²

  • Perceeloppervlakte

    -

  • Volume

    638 m³

Over de woning

In deze prachtige water- en groenrijke wijk kun je op één van de 2 laatst beschikbare bouwkavels jouw droomwoning realiseren. Wil jij vrijstaand wonen? En heb je zin om mee te denken over het ontwerp van je eigen woning, maar wil je wel zoveel mogelijk ontzorgd worden? Wie weet zit jij dan binnenkort met de adviseurs van Brummelhuis om tafel om je eigen vrijstaande woning in Weideblick te ontwerpen!

Je dag starten met een fantastisch weids uitzicht over de landerijen? Het kan allemaal op deze mooie locatie in nieuwbouwplan Weideblick. Al je woonwensen kunnen hier gerealiseerd worden! Wil je een uitbouw of een royale veranda? Alles kan!

Op de kavels met nummer 134 en 139 aan de Legakker heb jij de laatste kans om in dit mooie plan samen met Brummelhuis jouw droomwoning te realiseren. Je hebt de keuze uit maar liefst 5 verschillende woningtypen ontwikkeld die op deze kavels gebouwd mogen worden. Uiteraard is het mogelijk om zelf nog wat wensen in het ontwerp mee te nemen. De woningen zijn allemaal ENERGIEZUINIG waardoor je LAGE energielasten hebt.

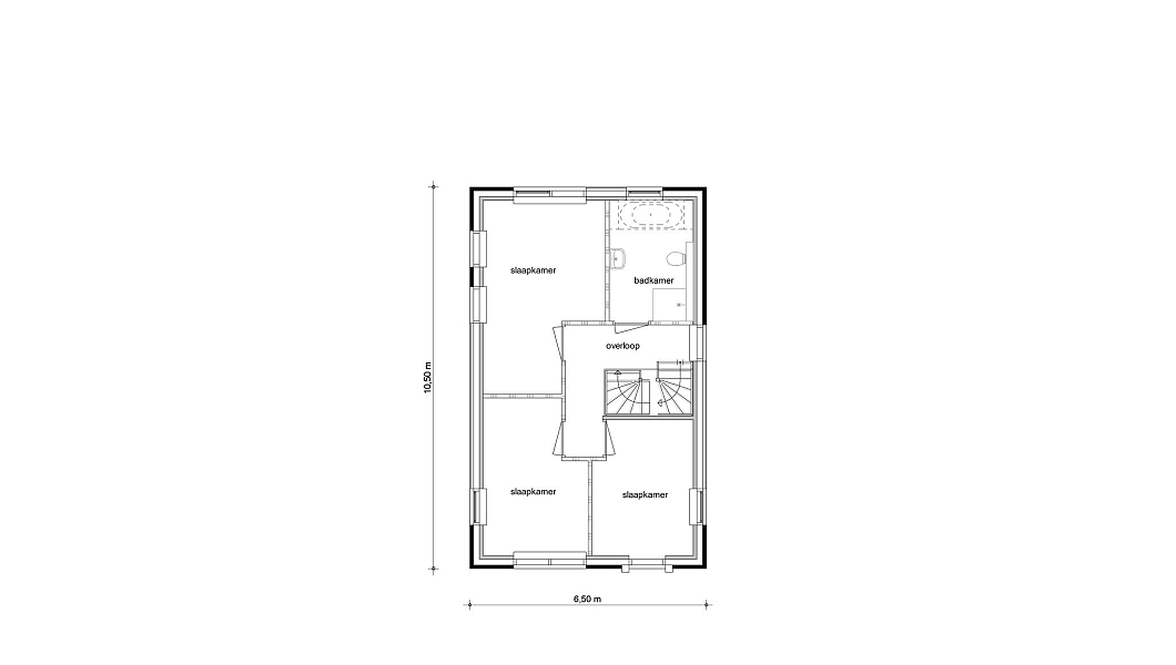
Woningtype 04 is een royale gezinswoning met de woonkamer aan de straatzijde. De geïsoleerde berging is via de straat te bereiken. De eetkamer heeft openslaande deuren naar de tuin. Op de 1e verdieping zijn 3 ruime slaapkamers en een badkamer met een optie voor een ligbad. De 2e verdieping is ruim en vrij in te delen.

Kijk op de projectwebsite van Brummelhuis welke woning je op welke kavel kan bouwen! Via de brochure kom je eenvoudig op de website terecht. De indeling verschilt per woning. Twijfel je over welke woning het beste bij jouw situatie past? Neem dan contact met ons op zodat we samen kunnen kijken welke woning het meest geschikt is.

Brummelhuis heeft meer dan dertig jaar ervaring in het realiseren van droomhuizen. Zorgeloos bouwen, wonen en genieten is bij Brummelhuis geen luxe, maar een vanzelfsprekendheid. De Woningborg garantie verzekert u ervan dat uw woning volgens alle afspraken volledig kan worden afgebouwd.

Genoemde aanneemsommen zijn inclusief:
* zonnepanelen
* warmtepomp
* sanitair en tegelwerk
* afschilderwerk buitenzijde houtwerk (éénmaal).
* vloerverwarming begane grond (m.u.v. berging/garage)
* stelpost sanitair en tegelwerk, € 6.000,- (bij type 01 a € 9.000,-)
* sonderingen
* diepere/aangepaste fundatie
* aansluitkosten water, elektra en riolering
* leges welstand en omgevingsvergunning (bouwen)
* bouwaansluitingen en verbruik bouwwater en - stroom tot de dag van oplevering
* gescheiden rioolsysteem (incl. hemelwaterinfiltratiesysteem)
* casco-all-risk verzekering tijdens de bouw
* oplevering Vereniging Eigen Huis
* Woningborg certificaat (afbouwwaarborg en kwaliteitsgarantie)
* 2x nestkast gierzwaluw en 2x nestkast huismus
* technische omschrijving / versie 2024 fase 3 / Weideblick Meppel

** Heb je voorkeur voor kunststof kozijnen? Je kan kosteloos een keuze maken voor kunststof kozijnen i.p.v. houten kozijnen.

Wil je weten of jouw droomwoning hier te realiseren is? Bespreek met ons je wensen zodat jij hier straks in alle rust kan wegdromen bij een weids uitzicht. We informeren je graag over alle mogelijkheden.

Ben jij nieuwsgierig hoeveel je kan financieren? Het is mogelijk een check uit te laten voeren door één van onze hypotheekadviseurs. Je kunt contact opnemen met onze hypotheekafdeling op het nummer 088 - 555 1 999.

Plan een afspraak

Selecteer een dagdeel (optioneel)

* is verplicht

Marjolein Houtman

Marjolein Houtman

Makelaar / nieuwbouwadviseur

Plan een afspraak
alberdine kin heuvelman